物件価格
月々のお支払い例
1,659.77円
※金利1.20% 借入金額:物件価格、借入期間35年
物件の特徴
主な設備
電気
公営水道
下水道
都市ガス
給湯
コンロ三口
ガスコンロ付
カウンターキッチン
システムキッチン
ユニットバス
オートバス
バスサイズ1620
追焚機能
トイレ
トイレ2箇所
温水洗浄便座
室内洗濯機置場
洗髪洗面化粧台
全室エアコン
衣類乾燥機
モニタ付インターホン
LDK15畳以上
フローリング
クローゼット2箇所
ウォークインクローゼット
床下収納
全居室収納
シューズボックス
ワイドバルコニー
主な特徴
耐震構造
前道6m以上
南側道路面す
2階建
新築
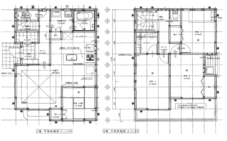
増改築設計図書
まずは私たちにご連絡ください!どんな些細なことでも力になります!
◇住宅ローン相談◇
「他社で断られた」
「審査が通らない」
「返済をできるだけ抑えたい」
そんなお悩みもぜひお聞かせください。
お客様一人ひとりに寄り添い、これからの暮らしを見据えた“最適なご提案”をいたします。
◇現地見学会開催中◇
平日や仕事終わりの夜でも「今日見てみたい!」そんなときでもOK♪
お電話1本でスタッフがすぐに駆けつけます!
048-762-8871こちらから
◇ご案内方法◇
ご来店いただかなくても、現地待ち合わせ・自宅、最寄りまでの送迎サービスで柔軟に対応!周辺環境や他にも見たい物件もあわせてご案内できます!
◇ご来店方法◇
ナビで「ハウスドゥさいたま北宿通り」で検索♪
ローソンストア100に駐車場に4台駐車可能!
手ぶらでOK!キッズスペース完備でお子様ずれでも問題なし!
◇売却査定相談◇
「急な転勤」「相続による売却」「金銭的な理由」など住まいの売却をそれぞれです。
仲介はもちろんのこと、弊社独自のネットワークで買取案件もご相談できます!
物件概要
| 価格 | 4,000万円 | 間取り | 4LDK |
|---|---|---|---|
| 物件種別 | 中古一戸建て | ||
| 所在地 | 埼玉県さいたま市緑区大字大門 | ||
| アクセス | 埼玉高速鉄道『浦和美園』 徒歩12分 (約960m) |
||
| 建物面積 | 公101.85㎡ | 駐車場 | あり 普通:2台 |
| 築年月 | 2015年(平成27年)03月築 | ||
| 建物構造 | 木造 2階建 | 工法 | |
| 主要採光 | 南西向 | バルコニー | |
| 保証・評価 | |||
| リフォーム | |||
| 土地面積 | 公116㎡(35.09坪) | 接道 | 南側(公道)幅 約6.0m |
| 私道 | セットバック | ||
| 地目 | 宅地 | 地勢 | |
| 権利 | 所有権 |
||
| 都市計画 | 市街化区域 |
用途地域 | 1種中高 |
| 建ぺい/容積率 | 60% / 200% | 土地国土法 | |
| 許可番号 | 建築基準法 | ||
| 法令制限 | |||
| 小学区 | 大門小学校 徒歩17分 (約1300m) | 中学区 | 美園南中学校 徒歩18分 (約1400m) |
| 現況 | 居住中 | 引渡 | 相談 |
| その他費用 | |||
| 周辺環境 | 大門上中央公園 徒歩2分 (約120m) | ||
| 備考 | |||
| 物件番号 | 4670780 | 取引態様 | 媒介 |































担当エージェント:笠井 航汰
~☆☆当日で案内可能な物件☆☆~さいたまの土地、戸建て、マンションのご相談はハウスドゥさいたま北宿通りにお気軽にお問い合わせ下さい!!